Fachschaft Kunst
Tolles Kunstprojekt
Der Baum - eine künstlerische Umsetzung
Königlicher Besuch am Gymnasium
Feierliche Rückübergabe der Bilder unserer Schülerinnen uns Schüler, die mehrfach auf Ausstellungen zu sehen waren.
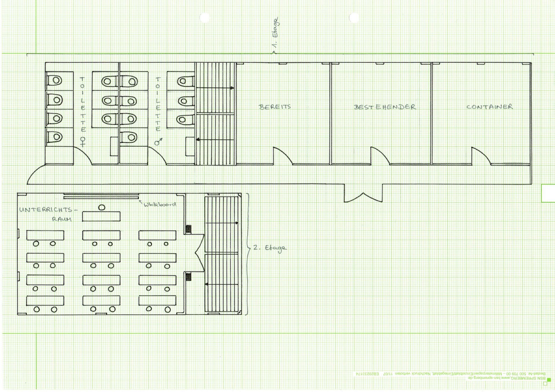
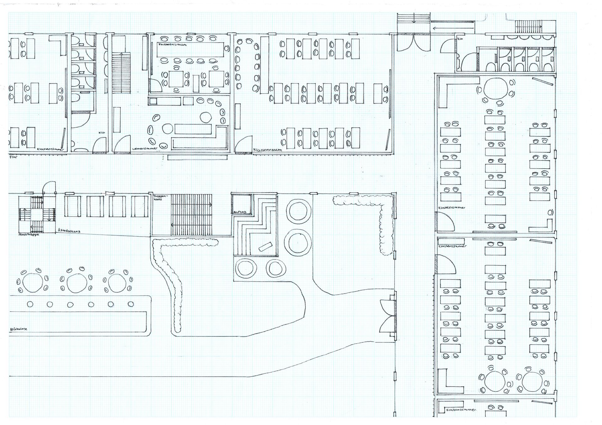
Ergebnisse des Architekturwettbewerbs in Kurs A25
Im ersten Halbjahr der 12. Klasse setzte sich der Kunsterziehungskurs von Frau Stahnke intensiv mit der eigenen Schularchitektur auseinander. Die Schüler*innen analysierten bestehende Problemfelder des Schulgebäudes und entwickelten daraufhin eigene
architektonische Entwürfe, um das Hauptgebäude mit dem Containerbau zu verbinden. Dabei mussten sie nicht nur funktionale und ästhetische Aspekte berücksichtigen, sondern auch gestalterische Lösungen für die identifizierten Herausforderungen finden.
Ihre Konzepte wurden in Form von Grundrissen, Fassadenaufrissen und Nutzungskonzepten visualisiert und erläutert.
Im Rahmen eines Architekturwettbewerbs präsentierten die Schüler*innen ihre Entwürfe zunächst in Kleingruppen. Anschließend wurden die besten Beiträge durch eine anonyme Punktevergabe anhand festgelegter Kriterien ermittelt. In der finalen Bewertung spielten insbesondere die kreative Herangehensweise sowie nachhaltige Lösungsansätze eine wichtige Rolle.
Die Gewinnerin des Wettbewerbs, Vanessa Trapp, erhielt als Preis einen Thalia-Gutschein, gestiftet vom Förderverein der Schule. Die drei besten Entwürfe sowie einige weitere herausragende Arbeiten sind nun hier auf der Schulhomepage zu sehen.
Herzlichen Glückwunsch an Vanessa Trapp, Mara Bilkenroth und Jillian Zinn! Ein großes Lob auch an alle anderen Teilnehmenden für ihre innovativen und durchdachten Konzepte!
(L. Stahnke)


Platz 1: Vanessa
Platz 2: Mara
Platz 3: Jillian
Kunst-Exkursion nach Dresden
Am Donnerstag, den 01.02.2024, fuhren die Schüler*innen der Klassenstufe 8 mit dem Bus nach Dresden. Begleitet wurden sie von den Lehrerinnen Frau Unfug, Frau Berle und Frau Stahnke.
Die Busfahrt wurde durch den Film „Michelangelo“ verkürzt und unterhalten.
In Dresden angekommen sahen sich die Schüler*innen zusammen mit einer Museumsführerin die Kunst des frühen Barocks und insbesondere die Stillleben an und einzelne Kunstelemente dieser Bilder wurden gedeutet bzw. ausgewertet. Nach der einstündigen Museumstour durften die achten Klassen die riesige Kunstausstellung selbst erkunden. Durch vorbereitende Schülervorträge im Kunstunterricht blieben vor allem die Kunstwerke „Sixtinische Madonna“ des Künstlers Raffael, das „Schokoladenmädchen“ von Jean-Étienne Liotard und „Briefleserin am offenen Fenster“ von Jan Vermeer nicht unbemerkt.
Nach dem Besuch der Gemäldegalerie „Alte Meister“ folgte ein Spaziergang zum „Fürstenzug“, vor dem die Schüler*innen durch einen Schülervortrag in die Geschichte der bedeutendsten Persönlichkeiten des sächsischen Geschlechts eingeführt wurden. Ein anschließender Besuch der Frauenkirche rundete das kulturelle Programm ab.
Danach durften alle die Stadt Dresden allein erforschen und anschauen. Ein kleiner Zwischenstopp bei McDonalds auf der Rückfahrt nach Großengottern beendete den ereignisreichen Tag. Dieser Ausflug wird allen sicher noch lange und positiv im Gedächtnis bleiben.
Maxi Zimmermann, 8a










